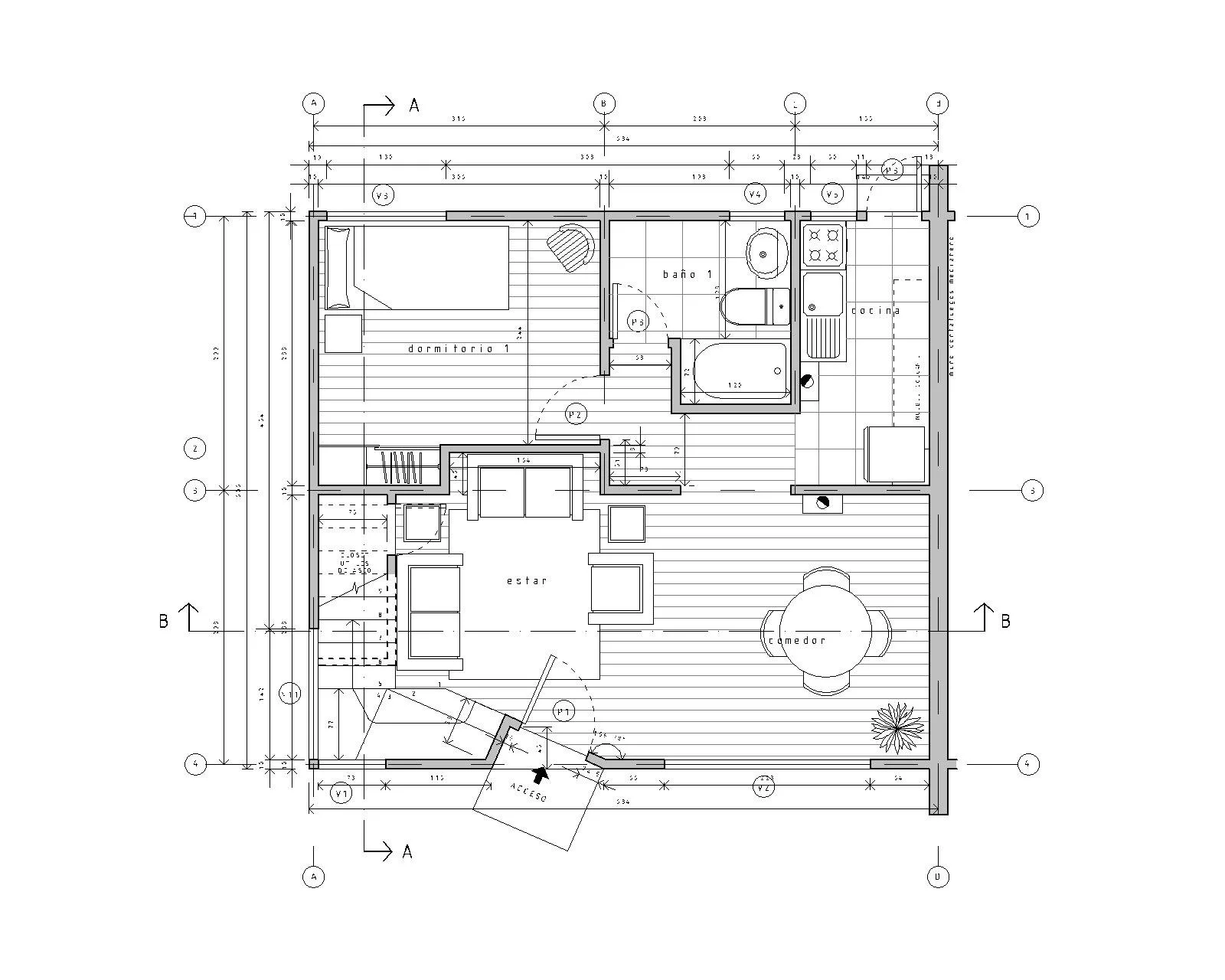
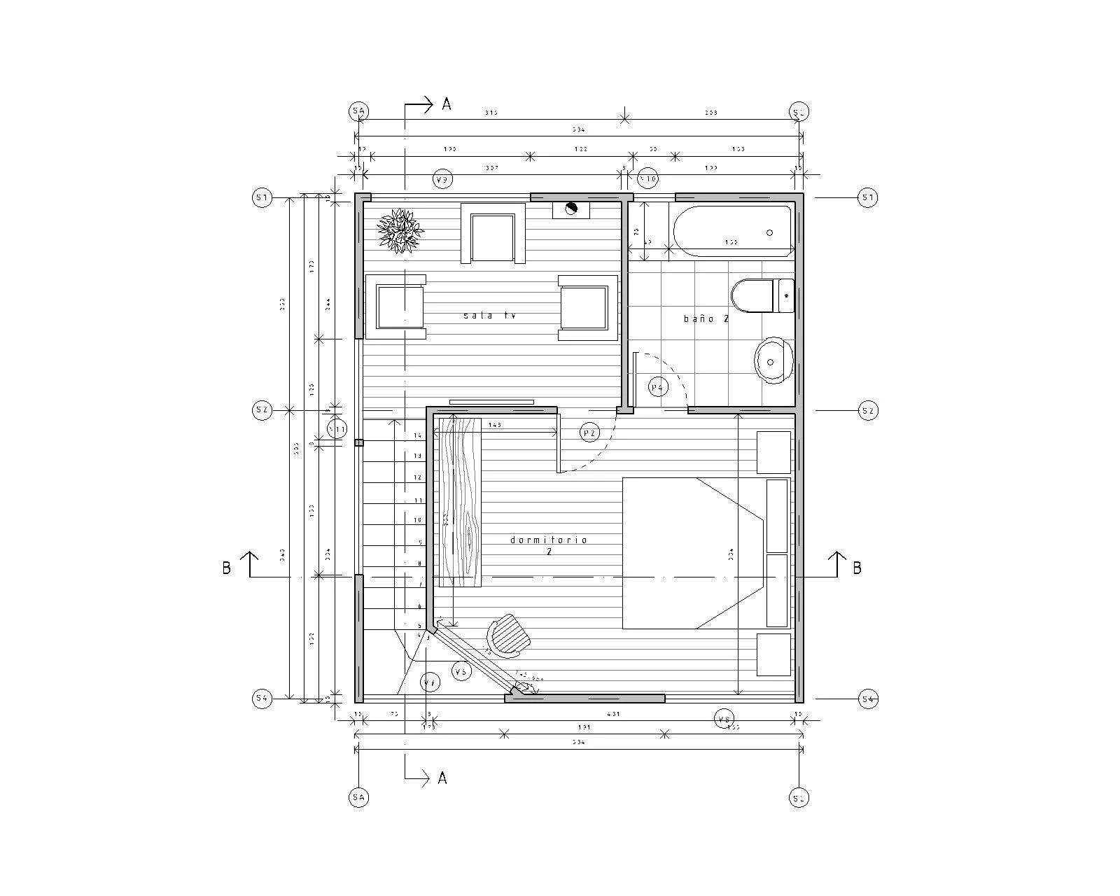
Morros House, Punta Arenas.

Morros House is a residential home designed for a young couple located in Punta Arenas, Chile. The project involved the redesign of the original house and the construction of an extension. The extension respected the immediate environment and incorporated the angles of adjacent sloping rooftops into the design.

Previous
Previous

Farm Stay Accommodation Cabins

Next
Next

Cilento, Mooloolaba